“田舎暮らし「千葉外房」なら”
ようこそ新茂原ホームへ

いすみ市岬町長者 980万円 中古 (51xq301hn)




長者商店街通りからほんのちょっと入った閑静な住宅地。199坪の広い敷地。昭和40年築の平屋に昭和53年に増築した2階建。9DLの間取。庭木も豊富で手入れも良好。ガーデニング、菜園等楽しめます。駅、銀行、商店、医院、大型商業施設等徒歩圏に揃い、日常生活も便利。海徒歩23分。

こちらの物件について問い合わせる
【物件番号をお手元にご用意ください】

外観・周辺

北東から南西へ

東より

西より

玄関前

東南より

2階屋部分の玄関

東より

庭の一角を、南西から北東へ

東へ

庭木も豊富

北東から南西へ

北東から南西へ

平家脇の下屋部分

北西から東南へ

東南から北西へ

敷地入口

西より

前面道路を、北東から南西へ

南西から北東へ

近くの「岬ショッピングガーデン」(徒歩17分)

旧岬町役場跡地に新設された郵便局(徒歩8分)

JR長者町駅(徒歩9分)

「ふれあい会館(文化会館)」(徒歩11分)

内観

設備

井戸

LPG

浄化槽

側溝

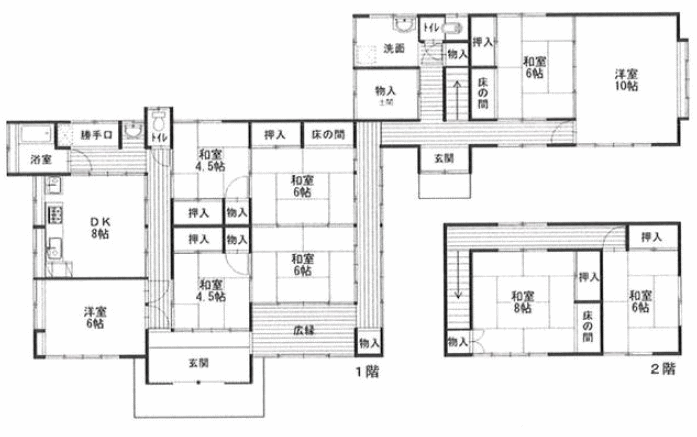
間取り

概略図

マップ

物件概要

エリアいすみエリア(いすみ市)
立地(環境・目的等)駅近・菜園、二世帯
更新日2026.3.1
物件番号51xq301hn
所在地いすみ市岬町長者(みさきちょうちょうじゃ)412-10
路線・最寄り駅JR外房線・長者町駅
最寄駅からの所要時間徒歩9分(長者町駅約650m)
価格980万円
土地面積(坪)657.88㎡(199.0坪)
建物面積(坪)192.15㎡(58.12坪)
間取り9DK
築年月1965年6月(昭和40年6月)
構造木造瓦葺2階建
都市計画・用途非線引・第一種住居地域
建ぺい率(%)60%
容積率(%)200%
設備井戸・LPG・浄化槽・側溝
接道状況北西側幅員約4.5mの公道に面す
駐車場有り
現況空家
取引態様仲介
備考・現況井戸水。但し前面公道から公営水道引込可能。