

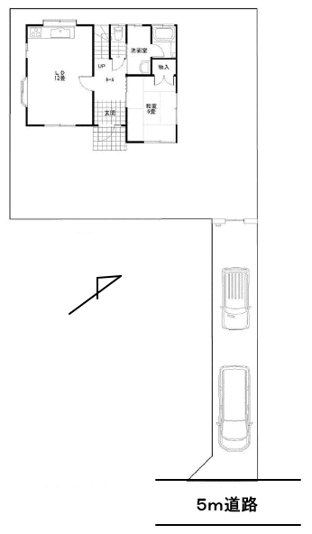
周囲には自然がのこる閑静な住宅地。リフォーム済。全室南東向きで日当たり良好。広々LDK12帖。収納豊富。駐車は縦列で2~3台可。
こちらの物件について問い合わせる
【物件番号をお手元にご用意ください】
外観・周辺
設備
間取り
概略図
マップ
GoogleMAP
物件概要
| エリア | 山武エリア(東金市) |
|---|---|
| 立地(環境・目的等) | 永住 |
| 更新日 | 2025.11.15 |
| 物件番号 | 27xpy15wk |
| 所在地 | 東金市下谷(しもや)215-7 |
| 路線・最寄り駅 | 福俵駅 |
| 最寄駅からの所要時間 | 車10分※福俵駅4.6km |
| 価格 | 780万円 |
| 土地面積(坪) | 191.68㎡(57.98坪) |
| 建物面積(坪) | 81.98㎡(24.79坪) |
| 間取り | 4LDK |
| 築年月 | 1996年8月 |
| 構造 | 木造スレート葺2階建て |
| 都市計画・用途 | 非線引・無指定 |
| 建ぺい率(%) | 60% |
| 容積率(%) | 200% |
| 設備 | 公営水道・LPG・浄化槽・側溝 |
| 接道状況 | 南東側幅員5m道路に面す |
| 駐車場 | 有り |
| 現況 | 空家 |
| 備考 | 1階和室にシロアリの食害有り。(補修済) |
| 仲介 | 仲介 |




























