“田舎暮らし「千葉外房」なら”
ようこそ新茂原ホームへ

白子町剃金 5300万円 築浅平屋(31xq418sn)




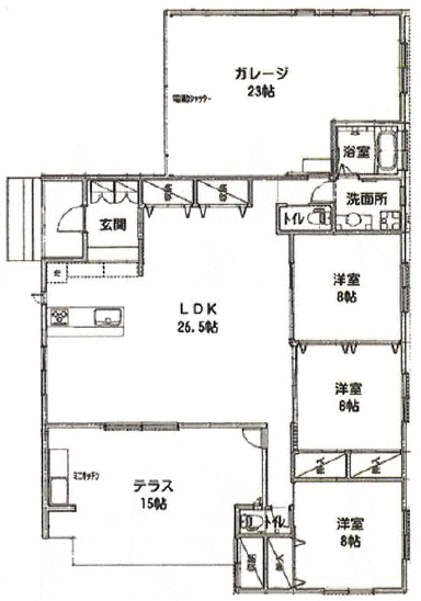
南白亀川そばの閑静な住宅地、別荘地。人気の築浅平屋。太陽光発電付のオール電化住宅。室内キレイにお使いです。ひろびろLDK26.5帖。洋室2帖は続き間としても使用可。床暖房完備。南側の日当たりの良いテラスでバーベキューなど楽しめます。駐車はガレージとあわせて4台可。

こちらの物件について問い合わせる
【物件番号をお手元にご用意ください】

外観・周辺

南西側


南側


北側


北東側


北西側


南東側


玄関




駐車スペース



前面私道


設備

公営水道

オール電化

浄化槽

側溝

間取り

概略図

マップ

GoogleMAP

物件概要

エリア長生エリア(白子町)
立地(環境・目的等)海近・川近・別荘、リゾート・永住
更新日2026.4.18
物件番号31xq418sn
所在地長生郡白子町剃金(そりがね)838-19
路線・最寄り駅本納駅
最寄駅からの所要時間車21分※本納駅10.4km
価格5300万円
土地面積(坪)304.16㎡(92坪)
建物面積(坪)162.72㎡(49.22坪)
間取り3LDK
築年月2025年4月
構造木造2階建て
都市計画・用途非線引・無指定
建ぺい率(%)60%
容積率(%)200%
設備公営水道・オール電化・浄化槽・側溝
接道状況北西側幅員約5m私道に面す
駐車場有り
現況空家
仲介仲介